Calcula tu presupuesto de arquitecto online, gratis y al instante
  • Esta web utiliza cookies, si sigues navegando en ella esás aceptando su uso. Más información

  • Presupuesto


    ¿Quieres contactar con este cliente?

    Regístrate gratis

    El registro es gratuito y podrás acceder a este trabajo y a muchos más.

    Si ya estás registrado,

    Accede ahora a tu cuenta

    Datos del presupuesto

    Datos generales
    Fecha 19-10-2023
    Válido hasta 18-11-2023
    Tipo de actuación Ampliación de vivienda unifamiliar
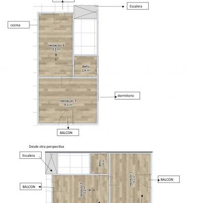
    Descripción de la actuación Ampliación de vivienda unifamiliar 1. MANTENER HABITACIÓN 3 (DORMITORIO). SOLO CAMBIAR PUERTA DE LUGAR No es necesario poner ladrillos se pone puerta corredera del baño con el casetón incluido 2. DERRIBAR BAÑO TIRAR LA PARED DE LA VENTANA ENTERA Y LA DE LA PUERTA (LA PARED DE LA PUERTA TIENE UN CASETON, NO ES LADRILLO) LA PARED QUE DA A LA ESCALERA TIRARLA Y AMPLIAR UN METRO HACIA LA ESCALERA PARA PONER AHÍ PUERTA DE ENTRADA Y HACER PASILLO DESDE LA ESCALERA 3. ABRIR UN PASILLO YA DESCRITO EN LA ANTERIOR IMAGEN Abrir pasillo desde la escalera hacia el actual baño (futuro pasillo), para que sea la puerta de entrada 4. HABITACIÓN 5, SIENDO LA COCINA, - Coincidiendo 1 metro con la pared del baño que antes se ha expuesto que se derribaría (actualmente es un casetón), -quitar puerta entrada y cerrarla -Cortar un tabique para hacer baño 5. DESTEJAR EL TEJADO Y CONSTRUIR SALON , DORMITORIO CON VESTIDOR Y TERRAZA Desglosados de la siguiente manera: 5.1 Construir salón con ventanal grande y a continuación terraza. Quitar ventana de patio e Incluirla en el salón 5.2 Construir dormitorio con vestuario y balcón/ ventanal con acceso a terraza 5.3 Construir terraza TECHO: OPCIÓN 1: TEJADO CON TEJAS SOLO PONER EN LA NUEVA PARTE QUE SE CONSTRUYA (LO DEMAS YA LO TIENE) OPCIÓN 2 : TEJADO DE TERRAZA SÓLO EN PARTE CONSTRUIDA NUEVA SALON Y DORMITORIO ( LO DEMAS DEJAR EL TEJADO QUE ESTÁ ACTUAL) OPCION 3: TEJADO DE TERRAZA EN TODO EL TECHO (HABRIA QUE DESTEJAR LA PARTE QUE YA LO TIENE QUE ES COCINA – BAÑO Y DORMITORIO
    Localización Málaga, 29001 Málaga
    Datos para el cálculo del presupuesto Cantidad Unidad
    Vivienda unifamiliar 19 m2
    Vivienda unifamiliar 5 m2
    Garaje anexo a vivienda unifamiliar 0 m2
    Trasteros y locales anexos en vivienda unifamiliar 0 m2
    Materiales de calidades normales (busco mejor relación calidad/precio)
    Diseño especial o innovador

    Presupuesto de honorarios profesionales

    Estos son los honorarios profesionales que hemos calculado para cada una de las fases necesarias para llevar a cabo tu proyecto.

    Fase Importe Descuento Subtotal
    Proyecto básico 1.600,00 € 0,00 € 1.600,00 €
    Proyecto de ejecución 1.200,00 € 0,00 € 1.200,00 €
    Dirección de obra 1.200,00 € 0,00 € 1.200,00 €
    Dirección de ejecución 1.200,00 € 0,00 € 1.200,00 €
    Coordinación de seguridad y salud 400,00 € 0,00 € 400,00 €
    Total 5.600,00 € 0,00 € 5.600,00 €

    Calendario de pagos

    Te proponemos este calendario de pagos para los honorarios profesionales.

    Hito Importe
    Aceptación de presupuesto 0,00 €
    Entrega de proyecto básico 0,00 €
    Entrega proyecto ejecución 0,00 €
    Comienzo de obra 0,00 €
    Final de obra 0,00 €
    Total 0,00 €

    ¿Qué incluye el presupuesto?

    En nuestro presupuesto están incluidas todas las actuaciones necesarias hasta la total terminación de los trabajos. Ten en cuenta que el presupuesto que te ofrecemos se refiere exclusivamente a los honorarios de profesionales que participan en la obra. Este es un listado de lo que se incluye:

    - Redacción de estudio o estudio básico de seguridad y salud, según sea aplicable

    - Redacción de estudio de gestión de residuos

    - Dirección de obra por arquitecto superior

    - Dirección de ejecución de obra por arquitecto técnico u otro técnico legalmente cualificado

    - Coordinación de seguridad y salud por técnico legalmente cualificado

    - Asesoramiento en la solicitud de licencia urbanística para la obra

    - Seguimiento del expediente y contestación a requerimientos del ayuntamiento hasta la concesión de la licencia urbanística

    - Asesoramiento en la contratación de empresa constructora

    - Visita inicial de replanteo y acta de replanteo

    - Hasta 5 visitas de obra adicionales

    - Comprobación de certificaciones parciales de obra y liquidación final presentadas por el constructor

    - Redacción de la documentación final de obra

    El presupuesto no incluye

    Ten en cuenta otros importes y conceptos que no incluye el presupuesto pero que serán necesarios para llevar a cabo tu proyecto.

    - IVA, impuestos y tasas municipales o de otros organismos oficiales

    - Precios, impuestos y tasas de visado de colegios profesionales

    Imágenes

    Estudio económico aproximado

    Te ofrecemos un cálculo estimado de los costes para que te hagas una idea de cuánto costará llevar a cabo tu proyecto. Por supuesto cada proyecto es único y pueden existir otros conceptos no incluidos en este listado, por lo que debes tomarlo como una primera aproximación al coste final de tu proyecto.

    Concepto Importe IVA Total IVA inc.
    Honorarios profesionales 5.600,00 € 1.176,00 € 6.776,00 €
    Visado colegios profesionales 130,30 € 27,36 € 157,66 €
    Tasas e impuestos municipales 1.042,37 € 0,00 € 1.042,37 €
    Ejecución de obras 26.059,20 € 2.605,92 € 28.665,12 €
    La ejecución de tu proyecto podría costar en total aproximadamente 32.831,86 € 3.809,28 € 36.641,14 €

    ¿Quieres contactar con este cliente?

    Regístrate gratis

    El registro es gratuito y podrás acceder a este trabajo y a muchos más.

    Si ya estás registrado,

    Accede ahora a tu cuenta

    Localización aproximada