Calcula tu presupuesto de arquitecto online, gratis y al instante
  • Esta web utiliza cookies, si sigues navegando en ella esás aceptando su uso. Más información

  • Presupuesto


    ¿Quieres contactar con este cliente?

    Regístrate gratis

    El registro es gratuito y podrás acceder a este trabajo y a muchos más.

    Si ya estás registrado,

    Accede ahora a tu cuenta

    Datos del presupuesto

    Datos generales
    Fecha 25-09-2024
    Válido hasta 25-10-2024
    Tipo de actuación Autopromoción de vivienda unifamiliar
    Descripción de la actuación PROYECTO BÁSICO PARA OBTENCIÓN DE LICENCIA DE OBRA DE VIVIENDA UNIFAMILIAR CUYO TIPO DE CONSTRUCCIÓN SERÁ DEL TIPO DE AUTOPROMOCIÓN. VIVIENDA DE 90M2 EN TERRENO URBANO SITUADO EN EL CONCELLO DE VALDOVIÑO, LA CORUÑA.
    Localización Valdoviño, 15542 Coruña, A
    Datos para el cálculo del presupuesto Cantidad Unidad
    Demolición de edificio, plantas sobre rasante 0 m2
    Vivienda unifamiliar (autopromoción) 90 m2
    Vivienda unifamiliar (autopromoción) 0 m2
    Buhardillas, cuartos de instalaciones y espacios no habitables 0 m2
    Porche o espacio exterior cubierto 0 m2
    Garaje anexo a vivienda unifamiliar 0 m2
    Piscina descubierta 0 m2
    Materiales de calidades básicas (busco el menor precio)
    Diseño tradicional
    Estudio geotécnico
    Tasas de visado de colegios profesionales
    Tasas e impuestos municipales
    Ejecución de obras

    Presupuesto de honorarios profesionales

    Estos son los honorarios profesionales que hemos calculado para cada una de las fases necesarias para llevar a cabo tu proyecto.

    Fase Importe Descuento Subtotal
    Proyecto básico 2.224,91 € 0,00 € 2.224,91 €
    Proyecto de ejecución 2.966,54 € 0,00 € 2.966,54 €
    Dirección de obra 2.224,91 € 0,00 € 2.224,91 €
    Dirección de ejecución de obra (Aparejador o arquitecto técnico) 2.224,91 € 0,00 € 2.224,91 €
    Seguridad y salud 1.112,45 € 0,00 € 1.112,45 €
    Total 10.753,72 € 0,00 € 10.753,72 €

    Calendario de pagos

    Te proponemos este calendario de pagos para los honorarios profesionales.

    Hito Importe
    Aceptación del presupuesto 0,00 €
    Entrega del proyecto básico 0,00 €
    Entrega del proyecto de ejecución 0,00 €
    Comienzo de obra 0,00 €
    Certificado final de obra 0,00 €
    Total 0,00 €

    ¿Qué incluye el presupuesto?

    En nuestro presupuesto están incluidas todas las actuaciones necesarias hasta la total terminación de los trabajos. Ten en cuenta que el presupuesto que te ofrecemos se refiere exclusivamente a los honorarios de profesionales que participan en la obra. Este es un listado de lo que se incluye:

    - Redacción de proyecto básico y de ejecución

    - Redacción de estudio o estudio básico de seguridad y salud, según sea aplicable

    - Redacción de estudio de gestión de residuos

    - Dirección de obra por arquitecto superior

    - Dirección de ejecución de obra por arquitecto técnico u otro técnico legalmente cualificado

    - Coordinación de seguridad y salud por técnico legalmente cualificado

    - Asesoramiento en la solicitud de licencia urbanística para la obra

    - Seguimiento del expediente y contestación a requerimientos del ayuntamiento hasta la concesión de la licencia urbanística

    - Asesoramiento en la contratación de empresa constructora

    - Visita inicial de replanteo y acta de replanteo

    - 5 visitas de obra adicionales

    - Comprobación de certificaciones parciales de obra y liquidación final presentadas por el constructor

    - Redacción de la documentación final de obra

    El presupuesto no incluye

    Ten en cuenta otros importes y conceptos que no incluye el presupuesto pero que serán necesarios para llevar a cabo tu proyecto.

    - IVA, impuestos y tasas municipales o de otros organismos oficiales

    - Precios, impuestos y tasas de visado de colegios profesionales

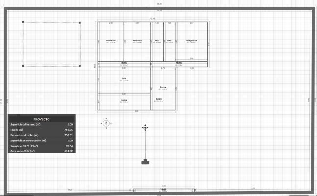
    Imágenes

    Estudio económico aproximado

    Te ofrecemos un cálculo estimado de los costes para que te hagas una idea de cuánto costará llevar a cabo tu proyecto. Por supuesto cada proyecto es único y pueden existir otros conceptos no incluidos en este listado, por lo que debes tomarlo como una primera aproximación al coste final de tu proyecto.

    Concepto Importe IVA Total IVA inc.
    Honorarios profesionales 10.753,72 € 2.258,27 € 13.011,99 €
    Construcción 108.000,00 € 10.800,00 € 118.800,00 €
    Licencias urbanísticas 5.400,00 € 0,00 € 5.400,00 €
    Visados de colegios profesionales 540,00 € 113,40 € 653,40 €
    Estudio geotécnico 600,00 € 126,00 € 726,00 €
    La ejecución de tu proyecto podría costar en total aproximadamente 125.293,72 € 13.297,67 € 138.591,39 €

    ¿Quieres contactar con este cliente?

    Regístrate gratis

    El registro es gratuito y podrás acceder a este trabajo y a muchos más.

    Si ya estás registrado,

    Accede ahora a tu cuenta

    Localización aproximada