Calcula tu presupuesto de arquitecto online, gratis y al instante

Presupuesto


¿Quieres contactar con este cliente?

Regístrate gratis

El registro es gratuito y podrás acceder a este trabajo y a muchos más.

Si ya estás registrado,

Accede ahora a tu cuenta

Datos del presupuesto

Datos generales
Fecha 04-08-2017
Válido hasta 03-09-2017
Tipo de actuación Autopromoción de vivienda unifamiliar
Descripción de la actuación construcción de dos viviendas de madera prefabricadas de 70m2 cada una en terreno urbano con un pequeño espacio común con pérgola entre ellas.
Localización Aldeamayor de San Martín, 47162 Valladolid
Datos para el cálculo del presupuesto Cantidad Unidad
Demolición de edificio, plantas sobre rasante 0 m2
Vivienda unifamiliar (autopromoción) 140 m2
Vivienda unifamiliar (autopromoción) 0 m2
Buhardillas, cuartos de instalaciones y espacios no habitables 0 m2
Porche o espacio exterior cubierto 15 m2
Garaje anexo a vivienda unifamiliar 0 m2
Piscina descubierta m2
Materiales de calidades normales (busco mejor relación calidad/precio)
Diseño tradicional
Estudio geotécnico
Tasas de visado de colegios profesionales
Tasas e impuestos municipales
Ejecución de obras

Presupuesto de honorarios profesionales

Estos son los honorarios profesionales que hemos calculado para cada una de las fases necesarias para llevar a cabo tu proyecto.

Fase Importe Descuento Subtotal
Proyecto básico 2.005,68 € 0,00 € 2.005,68 €
Proyecto de ejecución 2.674,24 € 0,00 € 2.674,24 €
Dirección de obra 2.005,68 € 0,00 € 2.005,68 €
Dirección de ejecución de obra (Aparejador o arquitecto técnico) 2.005,68 € 0,00 € 2.005,68 €
Seguridad y salud 1.002,84 € 0,00 € 1.002,84 €
Total 9.694,12 € 0,00 € 9.694,12 €

Calendario de pagos

Te proponemos este calendario de pagos para los honorarios profesionales.

Hito Importe
Aceptación del presupuesto 1.203,41 €
Entrega del proyecto básico 1.337,12 €
Entrega del proyecto de ejecución 2.139,39 €
Comienzo de obra 2.507,10 €
Certificado final de obra 2.507,10 €
Total 9.694,12 €

¿Qué incluye el presupuesto?

En nuestro presupuesto están incluidas todas las actuaciones necesarias hasta la total terminación de los trabajos. Ten en cuenta que el presupuesto que te ofrecemos se refiere exclusivamente a los honorarios de profesionales que participan en la obra. Este es un listado de lo que se incluye:

- Redacción de proyecto básico y de ejecución

- Redacción de estudio o estudio básico de seguridad y salud, según sea aplicable

- Redacción de estudio de gestión de residuos

- Dirección de obra por arquitecto superior

- Dirección de ejecución de obra por arquitecto técnico u otro técnico legalmente cualificado

- Coordinación de seguridad y salud por técnico legalmente cualificado

- Asesoramiento en la solicitud de licencia urbanística para la obra

- Seguimiento del expediente y contestación a requerimientos del ayuntamiento hasta la concesión de la licencia urbanística

- Asesoramiento en la contratación de empresa constructora

- Visita inicial de replanteo y acta de replanteo

- 5 visitas de obra adicionales

- Comprobación de certificaciones parciales de obra y liquidación final presentadas por el constructor

- Redacción de la documentación final de obra

El presupuesto no incluye

Ten en cuenta otros importes y conceptos que no incluye el presupuesto pero que serán necesarios para llevar a cabo tu proyecto.

- IVA, impuestos y tasas municipales o de otros organismos oficiales

- Precios, impuestos y tasas de visado de colegios profesionales

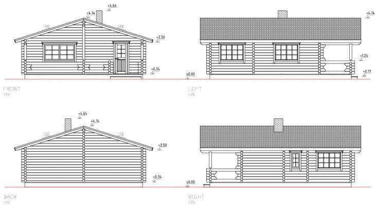
Imágenes

Estudio económico aproximado

Te ofrecemos un cálculo estimado de los costes para que te hagas una idea de cuánto costará llevar a cabo tu proyecto. Por supuesto cada proyecto es único y pueden existir otros conceptos no incluidos en este listado, por lo que debes tomarlo como una primera aproximación al coste final de tu proyecto.

Concepto Importe IVA Total IVA inc.
Honorarios profesionales 9.694,12 € 2.035,76 € 11.729,88 €
Construcción 104.552,50 € 10.455,25 € 115.007,75 €
Licencias urbanísticas 5.227,63 € 0,00 € 5.227,63 €
Visados de colegios profesionales 522,76 € 109,78 € 632,54 €
Estudio geotécnico 600,00 € 126,00 € 726,00 €
La ejecución de tu proyecto podría costar en total aproximadamente 120.597,01 € 12.726,79 € 133.323,80 €

¿Quieres contactar con este cliente?

Regístrate gratis

El registro es gratuito y podrás acceder a este trabajo y a muchos más.

Si ya estás registrado,

Accede ahora a tu cuenta

Localización aproximada