Calcula tu presupuesto de arquitecto online, gratis y al instante
  • Esta web utiliza cookies, si sigues navegando en ella esás aceptando su uso. Más información

  • Presupuesto


    ¿Quieres contactar con este cliente?

    Regístrate gratis

    El registro es gratuito y podrás acceder a este trabajo y a muchos más.

    Si ya estás registrado,

    Accede ahora a tu cuenta

    Datos del presupuesto

    Datos generales
    Fecha 16-02-2021
    Válido hasta 18-03-2021
    Tipo de actuación Construcción de terraza, escalera y plataforma horizontal (Ordenación de parcela)
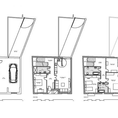
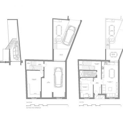
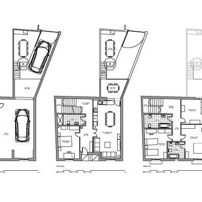
    Descripción de la actuación La vivienda (adosada) posee una pequeña parcela trasera de unos 30 m2 en ligera pendiente descendente hacia la entrada del garaje en planta sótano. Me gustaría ejecutar un pequeño forjado de unos 10 m2 a cota de planta baja para realizar una terraza a la que tenga salida el salón de la vivienda y comunicarla mediante una escalera con una pequeña plataforma horizontal en planta baja donde se colocaría una encimera de obra con una barbacoa y habría espacio para colocar una mesa para comer al aire libre. También generaríamos un alcorque para plantar un arbolito. Facilito planos del estado actual y propuesta de estado reformado.
    Localización Málaga, 29001 Málaga
    Datos para el cálculo del presupuesto Cantidad Unidad
    Vivienda unifamiliar 30 m2
    Vivienda unifamiliar 0 m2
    Garaje anexo a vivienda unifamiliar 0 m2
    Trasteros y locales anexos en vivienda unifamiliar 0 m2
    Materiales de calidades normales (busco mejor relación calidad/precio)
    Diseño especial o innovador

    Presupuesto de honorarios profesionales

    Estos son los honorarios profesionales que hemos calculado para cada una de las fases necesarias para llevar a cabo tu proyecto.

    Fase Importe Descuento Subtotal
    Proyecto básico 1.600,00 € 0,00 € 1.600,00 €
    Proyecto de ejecución 1.200,00 € 0,00 € 1.200,00 €
    Dirección de obra 1.200,00 € 0,00 € 1.200,00 €
    Dirección de ejecución 1.200,00 € 0,00 € 1.200,00 €
    Coordinación de seguridad y salud 400,00 € 0,00 € 400,00 €
    Total 5.600,00 € 0,00 € 5.600,00 €

    Calendario de pagos

    Te proponemos este calendario de pagos para los honorarios profesionales.

    Hito Importe
    Aceptación de presupuesto 800,00 €
    Entrega de proyecto básico 800,00 €
    Entrega proyecto ejecución 1.200,00 €
    Comienzo de obra 1.600,00 €
    Final de obra 1.200,00 €
    Total 5.600,00 €

    ¿Qué incluye el presupuesto?

    En nuestro presupuesto están incluidas todas las actuaciones necesarias hasta la total terminación de los trabajos. Ten en cuenta que el presupuesto que te ofrecemos se refiere exclusivamente a los honorarios de profesionales que participan en la obra. Este es un listado de lo que se incluye:

    - Redacción de estudio o estudio básico de seguridad y salud, según sea aplicable

    - Redacción de estudio de gestión de residuos

    - Dirección de obra por arquitecto superior

    - Dirección de ejecución de obra por arquitecto técnico u otro técnico legalmente cualificado

    - Coordinación de seguridad y salud por técnico legalmente cualificado

    - Asesoramiento en la solicitud de licencia urbanística para la obra

    - Seguimiento del expediente y contestación a requerimientos del ayuntamiento hasta la concesión de la licencia urbanística

    - Asesoramiento en la contratación de empresa constructora

    - Visita inicial de replanteo y acta de replanteo

    - Hasta 5 visitas de obra adicionales

    - Comprobación de certificaciones parciales de obra y liquidación final presentadas por el constructor

    - Redacción de la documentación final de obra

    El presupuesto no incluye

    Ten en cuenta otros importes y conceptos que no incluye el presupuesto pero que serán necesarios para llevar a cabo tu proyecto.

    - IVA, impuestos y tasas municipales o de otros organismos oficiales

    - Precios, impuestos y tasas de visado de colegios profesionales

    Imágenes

    Estudio económico aproximado

    Te ofrecemos un cálculo estimado de los costes para que te hagas una idea de cuánto costará llevar a cabo tu proyecto. Por supuesto cada proyecto es único y pueden existir otros conceptos no incluidos en este listado, por lo que debes tomarlo como una primera aproximación al coste final de tu proyecto.

    Concepto Importe IVA Total IVA inc.
    Honorarios profesionales 5.600,00 € 1.176,00 € 6.776,00 €
    Visado colegios profesionales 135,55 € 28,47 € 164,02 €
    Tasas e impuestos municipales 1.084,43 € 0,00 € 1.084,43 €
    Ejecución de obras 27.110,82 € 2.711,08 € 29.821,90 €
    La ejecución de tu proyecto podría costar en total aproximadamente 33.930,81 € 3.915,55 € 37.846,36 €

    ¿Quieres contactar con este cliente?

    Regístrate gratis

    El registro es gratuito y podrás acceder a este trabajo y a muchos más.

    Si ya estás registrado,

    Accede ahora a tu cuenta

    Localización aproximada