Calcula tu presupuesto de arquitecto online, gratis y al instante
  • Esta web utiliza cookies, si sigues navegando en ella esás aceptando su uso. Más información

  • Presupuesto


    ¿Quieres contactar con este cliente?

    Regístrate gratis

    El registro es gratuito y podrás acceder a este trabajo y a muchos más.

    Si ya estás registrado,

    Accede ahora a tu cuenta

    Datos del presupuesto

    Datos generales
    Fecha 07-03-2019
    Válido hasta 06-04-2019
    Tipo de actuación Reforma integral de vivienda
    Descripción de la actuación Buenas noches,me gustaría modificar la planta baja de mi vivienda de de 64m abriendo los espacios. Gracias
    Localización Valdemoro, 28340 Madrid
    Datos para el cálculo del presupuesto Cantidad Unidad
    Vivienda 65 m2
    Vivienda 10 m2
    Materiales de calidades normales (busco mejor relación calidad/precio)
    Tasas de visado de colegios profesionales
    Tasas e impuestos municipales
    Ejecución de obras

    Presupuesto de honorarios profesionales

    Estos son los honorarios profesionales que hemos calculado para cada una de las fases necesarias para llevar a cabo tu proyecto.

    Fase Importe Descuento Subtotal
    Proyecto de reforma 2.000,00 € 0,00 € 2.000,00 €
    Dirección de obra y ejecución 800,00 € 0,00 € 800,00 €
    Coordinación de seguridad y salud 400,00 € 0,00 € 400,00 €
    Total 3.200,00 € 0,00 € 3.200,00 €

    Calendario de pagos

    Te proponemos este calendario de pagos para los honorarios profesionales.

    Hito Importe
    Aceptación de presupuesto 1.000,00 €
    Entrega de proyecto 1.000,00 €
    Comienzo de obra 600,00 €
    Final de obra 600,00 €
    Total 3.200,00 €

    ¿Qué incluye el presupuesto?

    En nuestro presupuesto están incluidas todas las actuaciones necesarias hasta la total terminación de los trabajos. Ten en cuenta que el presupuesto que te ofrecemos se refiere exclusivamente a los honorarios de profesionales que participan en la obra. Este es un listado de lo que se incluye:

    - Redacción de proyecto básico y de ejecución

    - Redacción de estudio o estudio básico de seguridad y salud, según sea aplicable

    - Redacción de estudio de gestión de residuos

    - Dirección de obra por arquitecto superior

    - Seguro de responsabilidad civil para todas las actuaciones del arquitecto

    - Asesoramiento en la solicitud de licencia urbanística para la obra

    - Seguimiento del expediente y contestación a requerimientos del ayuntamiento hasta la concesión de la licencia urbanística

    - Visita inicial de replanteo y acta de replanteo

    - 5 visitas de obra adicionales

    - Comprobación de certificaciones parciales de obra y liquidación final presentadas por la empresa constructora

    - Redacción de la documentación final de obra

    El presupuesto no incluye

    Ten en cuenta otros importes y conceptos que no incluye el presupuesto pero que serán necesarios para llevar a cabo tu proyecto.

    - IVA, impuestos y tasas municipales o de otros organismos oficiales

    - Precios, impuestos y tasas de visado de colegios profesionales

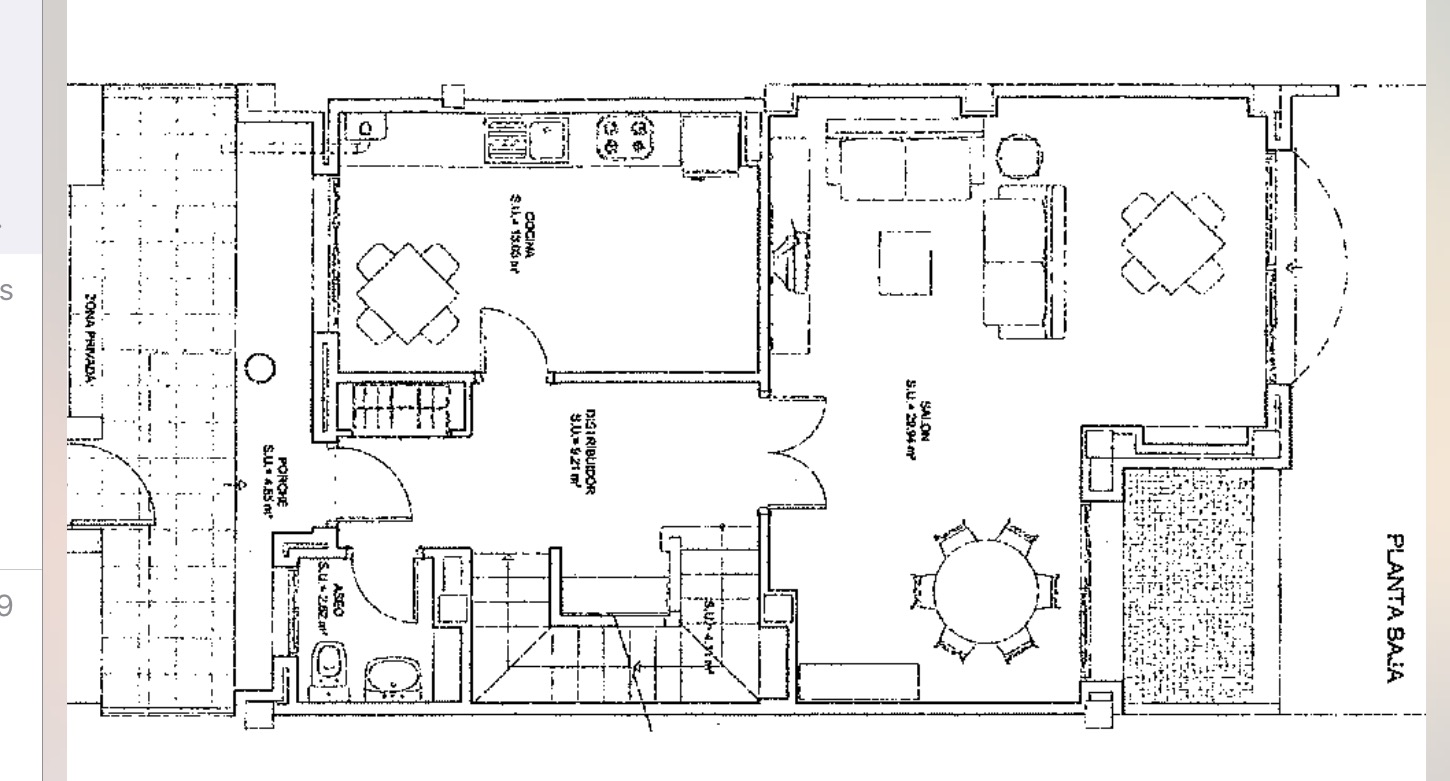
    Imágenes

    Estudio económico aproximado

    Te ofrecemos un cálculo estimado de los costes para que te hagas una idea de cuánto costará llevar a cabo tu proyecto. Por supuesto cada proyecto es único y pueden existir otros conceptos no incluidos en este listado, por lo que debes tomarlo como una primera aproximación al coste final de tu proyecto.

    Concepto Importe IVA Total IVA inc.
    Honorarios profesionales 3.200,00 € 672,00 € 3.872,00 €
    Tasas e impuestos municipales 1.626,22 € 0,00 € 1.626,22 €
    Ejecución de obras 40.655,48 € 4.065,55 € 44.721,03 €
    La ejecución de tu proyecto podría costar en total aproximadamente 45.481,69 € 4.737,55 € 50.219,24 €

    ¿Quieres contactar con este cliente?

    Regístrate gratis

    El registro es gratuito y podrás acceder a este trabajo y a muchos más.

    Si ya estás registrado,

    Accede ahora a tu cuenta

    Localización aproximada